クリップするにはログインが必要です。

イエカウホーム愛知県版自然と調和し、暮らしを豊かに。エコボテラス上志段味。

自然と調和し、暮らしを豊かに。エコボテラス上志段味。|

ルームツアー

411人が興味を持っています BOTANICAL HAUS(ボタニカルハウス)

物件概要

名古屋市守山区上志段味に、新たな建売住宅「エコボテラス上志段味A棟」が誕生しました。コストコの開業などで注目が集まる人気エリアに位置し、利便性と自然の豊かさを兼ね備えた住環境が魅力です。この住まいは、ドイツ製木繊維断熱材「エコボード」を採用し、自然素材をふんだんに使った心地よい空間づくりを実現しています。

大きな吹き抜けリビングは、光と風を取り込みながら家全体の空気を循環させ、1台のエアコンで1階・2階ともに快適な温度を保つ省エネ設計。杉の無垢板や漆喰壁が調湿・防音効果を発揮し、木の香りに包まれた癒しの時間を演出します。

さらに、共働き家庭にうれしい工夫が随所に。大容量パントリーで日用品をすっきり収納でき、洗面所や2階廊下には室内干しスペースを完備。湿度を一定に保つエコボードの効果で、部屋干しでも嫌なにおいが出にくい設計です。吹き抜けに面したワークスペースは、在宅勤務や勉強に最適。

ただの建売住宅ではなく、“環境と暮らしの質を両立するまちづくり”を目指す【エコボテラス】プロジェクトの一棟として誕生したこの住まい。持続可能で快適な暮らしを、ここ上志段味から

敷地面積
49.76坪 (164.51平米)
延床面積
30.56坪 (101.02平米)
価格帯
5,000万円〜
価格
5,700万円
工法
木造軸組在来工法
金山 弘明

BOTANICAL HAUS(ボタニカルハウス)

〒465-0064
愛知県名古屋市名東区大針1丁目13番地

家づくりのプロ集団が建てる、 断熱材まで木でできた とことん自然素材「エコボード」の家

外観

外観

シンプルで飽きのこない外観デザイン。玄関前の壁が外からの視線をやわらかく遮り、ほどよいプライバシーを確保しながら奥行きのある印象を演出しています。1階部分の木板とウッドデッキがアクセントとなり、ナチュラルで温かみのある佇まいに仕上がっています。

キッチン

キッチン

キッチンにはPanasonic製を採用。調理中に便利なクッキングコンセント付きで、ミキサーやホットプレートなどの家電もスムーズに使用できます。隣には大容量のパントリーを設け、食品や日用品、防災グッズ、使用頻度の低い家電までたっぷり収納可能。キッチンまわりをすっきりと保てるだけでなく、買い物の回数を減らしたり、災害時の備蓄スペースとして活用できるなど、家事効率を高めてくれる頼もしい空間です。

リビング

リビング

リビング上部に大きな吹き抜けを設け、自然光をたっぷり取り込みながら、空気の循環を生み出します。エアコン1台で1階も2階も快適に保つ省エネ設計。杉無垢板と漆喰を組み合わせたTV背面の壁が空間にメリハリを与え、木の香りや温もりが心地よさを演出します。調湿性や防音効果もあり、家族が自然と集まるリビングです。

書斎・家事ルーム

書斎・家事ルーム

吹き抜けに面したワークスペースは、集中できる環境を確保しつつ、家族の気配も感じられる安心の設計。在宅勤務や勉強、趣味など多目的に活用でき、生活と仕事のメリハリをつけやすい空間です。

ベッドルーム

ベッドルーム

主寝室は、心からくつろげるちょうどよい広さ。大きなウォークインクローゼットを備えており、季節ごとに衣類を分けて収納できるため、衣替えの手間がなく便利です。落ち着きと機能性を兼ね備えた、快適なプライベート空間です。

お風呂

お風呂

バスルームにはPanasonic製を採用。フラットラインLEDにより、すっきりとした印象と上質なデザインを両立しています。無駄を省いたシンプルな空間は、凸凹が少なくお手入れも簡単。日々のバスタイムを心地よく過ごせる、機能美あふれるお風呂です。

トイレ

トイレ

壁埋め込み収納を設け、トイレットペーパーや掃除用品など、必要なものをすっきりと収納できます。シンプルなデザインの中に高い機能性を備えた、快適で美しい空間です。

洗面所

洗面所

洗面所には集成材の棚と物干しパイプを設置。タオルや着替え、日用品の収納はもちろん、少量の洗濯物をその場で干すことも可能です。干したままでも洗面が使いやすいよう工夫されており、限られた空間でも快適に利用できます。

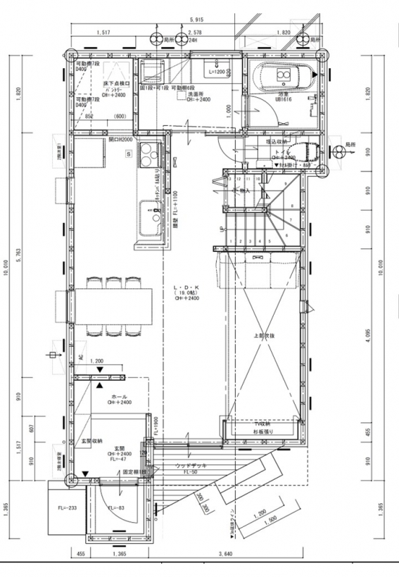
1階間取り

1階間取り

リビング上部に大きな吹き抜けを設けた、明るく開放的な空間が特徴の1階。廊下をつくらない設計により、どの場所へもスムーズに行き来でき、動線がシンプルで無駄がありません。家族の気配を感じながら、のびやかに暮らせる間取りです。

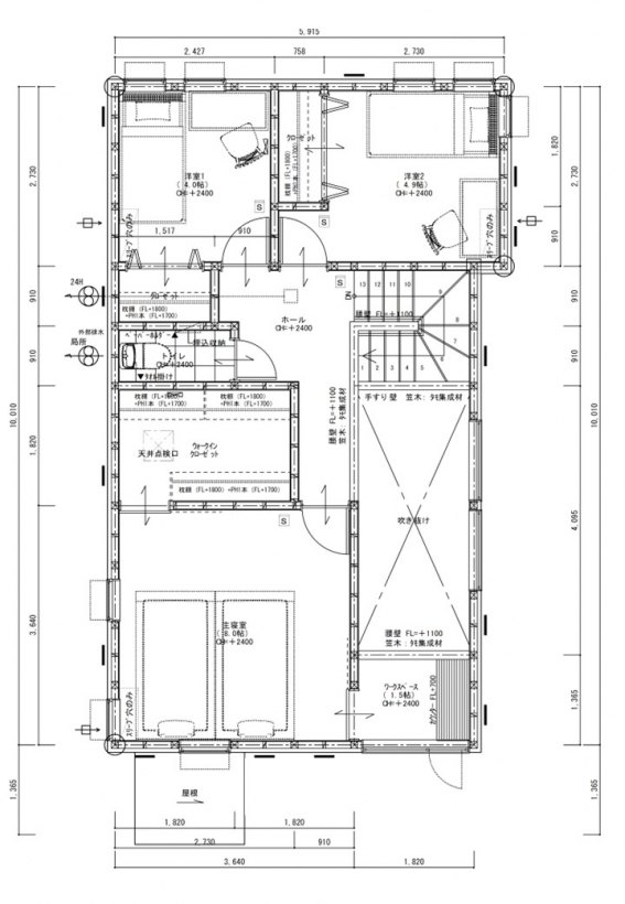
2階間取り

2階間取り

2階は、吹き抜けを活かした開放的な設計が特徴。ボタニカルハウスでは、あえてバルコニーを設けず、ホールに物干しスペースを確保しています。梅雨時や冬でも室内干しでしっかり乾く快適な環境で、洗濯物を干していても動線の邪魔にならない工夫がされています。機能性と快適さを両立した、理想的な暮らしを叶える間取りです。

物件概要

名古屋市守山区上志段味に、新たな建売住宅「エコボテラス上志段味A棟」が誕生しました。コストコの開業などで注目が集まる人気エリアに位置し、利便性と自然の豊かさを兼ね備えた住環境が魅力です。この住まいは、ドイツ製木繊維断熱材「エコボード」を採用し、自然素材をふんだんに使った心地よい空間づくりを実現しています。

大きな吹き抜けリビングは、光と風を取り込みながら家全体の空気を循環させ、1台のエアコンで1階・2階ともに快適な温度を保つ省エネ設計。杉の無垢板や漆喰壁が調湿・防音効果を発揮し、木の香りに包まれた癒しの時間を演出します。

さらに、共働き家庭にうれしい工夫が随所に。大容量パントリーで日用品をすっきり収納でき、洗面所や2階廊下には室内干しスペースを完備。湿度を一定に保つエコボードの効果で、部屋干しでも嫌なにおいが出にくい設計です。吹き抜けに面したワークスペースは、在宅勤務や勉強に最適。

ただの建売住宅ではなく、“環境と暮らしの質を両立するまちづくり”を目指す【エコボテラス】プロジェクトの一棟として誕生したこの住まい。持続可能で快適な暮らしを、ここ上志段味から

敷地面積
49.76坪 (164.51平米)
延床面積
30.56坪 (101.02平米)
価格帯
5,000万円〜
価格
5,700万円
工法
木造軸組在来工法
金山 弘明

BOTANICAL HAUS(ボタニカルハウス)

〒465-0064
愛知県名古屋市名東区大針1丁目13番地

家づくりのプロ集団が建てる、 断熱材まで木でできた とことん自然素材「エコボード」の家

BOTANICAL HAUS(ボタニカルハウス)への
お問い合わせ・資料請求ははこちら!

お問合わせ・資料請求された方全員に、
イエカウ BY HOUSEリサーチよりamazonギフト券をプレゼント!

イエカウ BY HOUSEリサーチよりお問合わせ・資料請求後、
住宅会社・設計事務所より資料の郵送、または電話等でのご連絡がございます。
理想の家をつくるために、気になった住宅会社・設計事務所をチェック!

BOTANICAL HAUS(ボタニカルハウス)の
イベント見学会はこちら!

BOTANICAL HAUS(ボタニカルハウス)のお薦め施工例

新築

毎日が別荘気分、大きな三角屋根の家

新築

シンプルに暮らす「木×白」のやさしい住まい

新築

スキップフロアと土間リビングが家族をつなぐ住まい